Referenzen

Hier sind oder waren wir tätig

Unsere Referenzen

Eine kleine Auswahl an unseren schon fertigen oder noch im Bau befindlichen Projekten.

Sanierung/Umbau eines Hochbunkers in Wohnungen in Hamburg:

Der Hochbunker wurde entkernt. Die Geschossdecken, sowie die Front und Hinterhofwand wurden völlig entfernt. Es standen nur noch die Seitenwänden. Neue Massivdecken und ein Staffelgeschoss wurden neu gebaut. Hier war das Thema „Bauen im Bestand“. Interessant waren die einzelnen Bauzustände mit den Wandabfangungen.

Unsere Leistung:
Tragwerksplanung, Schal- und Bewehrungsplanung

Bauherr:
J.Stienemeier Bauträger GmbH
Architekt:
Weyers-Architekten, www.weyers-architekten.de


Neubau Seniorenwohnheim in Bad Oldesloe:

Neubau eines zweigeschossigen Wohngebäudes mit Staffelgeschoss der Gebäudeklasse III. Es entstehen 45 Senioren-Wohneinheiten mit einer Gesamtwohnfläche von ca. 2.373 m³. Im Untergeschoss befinden sich Technik- und Nebenräume.

Unsere Leistung:
Tragwerksplanung, Schal- und Bewehrungsplanung

Bauherr:

LTG Projektgesellschaft Süd-Holstein mbH
Architekt:
Felsensteinproject Architekten, www.felsensteinproject.de


Neubau einer Wohnanlage in Lübeck:

Die Wohnanlage besteht aus drei Gebäuden der Gebäudeklasse III mit insgesamt 13 Wohneinheiten. Unterhalb der Wohngebäude befindet sich eine gemeinsam genutzte Tiefgarage.

Unsere Leistung:
Tragwerksplanung einschl. Kranfundament, Schal- und Bewehrungsplanung,
 Wärmeschutznachweis, Schallschutz

Bauherr:

BMF GmbH & Co. KG
Architekt:
Dipl.-Ing. Architekt Wolfgang Kriese, www.wolfgang-kriese-architekt.de


Neubau Mehrfamilienhaus in Lübeck:

Errichtung eines Mehrfamilien-Wohnhauses der Gebäudeklasse III mit 5 Wohneinheiten und Tiefgarage.

Unsere Leistung:
Tragwerksplanung, Schal- und Bewehrungsplanung, Wärmeschutznachweis, Schallschutz

Bauherr:

Schmiede Grundbesitz GmbH & Co. KG
Architekt:
Dipl.-Ing. Architekt Wolfgang Kriese, www.wolfgang-kriese-architekt.de


Neubau Mehrfamilienhaus in Hamburg:

Errichtung eines Mehrfamilienwohnhauses der Gebäudeklasse III mit 6 Wohneinheiten.

Unsere Leistung:
Tragwerksplanung, Schal- und Bewehrungsplanung, Wärmeschutznachweis, Schallschutz

Bauherr:

Sievers-Südkamp Wohnbau GmbH
Architekt:
Sievers-Südkamp Architekten, www.sievers-suedkamp.de


Neubau eines Mehrfamilienhauses mit Tiefgarage

Eine Dachkonstruktion die es in sich hatte, ein Zusammenspiel aus Holz, Stahl und Massivbau

Unsere Leistung:
Tragwerksplanung, Schal- und Bewehrungsplanung, Wärmeschutznachweis

Bauherr:

Mollwitz GmbH
Architekt:
Architektin Sabrina Kreinsen-Tegtmeyer und Susanne Pries


Neubau eines Wohngebäudes mit Mikro-Appartments in Hamburg:

Die zwei Gebäudeteile des Wohngebäudes enthalten insgesamt 24 Mikro-Appartments sowie 6 Maisonette-Wohnungen.

Unsere Leistung:
Tragwerksplanung, Schal- und Bewehrungsplanung, Wärmeschutznachweis

Bauherr:

LTG Hamburg Ahrensburger Str. GmbH
Architekt:
Planungsbüro Michael Meyer


Neubau eines Wohn- und Geschäftshauses in Sereetz:

Errichtung eines Wohngebäudes der Gebäudeklasse IV. Im EG sind Flächen für Kleingewerbe sowie Praxisräume geplant, in den oberen Geschossen entstehen zusätzlich 14 Wohneinheiten. Die Unterkellerung umfasst Technik- und Abstellräume sowie Tiefgaragenstellplätze.

Unsere Leistung:
Tragwerksplanung, Schal- und Bewehrungsplanung, Wärmeschutznachweis

Bauherr:

TG Schwartauer Straße GmbH
Architekt:
Planungsbüro Michael Meyer


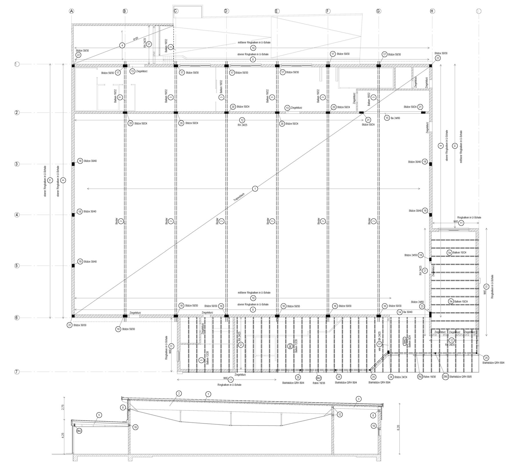
Neubau eines Marken-Discountmarktes in Rostock

Neubau eines Discountmarktes. Erbrachte Leistung sind die Phasen 1-5.

Generalunternehmer:
IGB Construct GmbH & Co.KG

Architektur:
g/w/p GmbH


BV Mützendorpsteed in Hamburg:

Neubau eines Mehrfamilienhauses in Hamburg in Massivbauweise. Erbrachte Leistung sind die Phasen 1-5, sowie Wärmeschutz- und Schallschutzberechnung. Schallschutz wird hier nach VDI SSt. II erfüllt.

Architektur:
Inga Sievers-Südkamp aus Hamburg, www.architektin-sievers-suedkamp.de

Weitere Informationen zum Download


BV Hirsekamp in Hamburg:

Neubau von 2 Stadthäusern in Hamburg in Massivbauweise mit einer Tiefgarage. Erbrachte Leistung sind die Phasen 1-5, sowie Wärmeschutz- und Schallschutzberechnung. Schallschutz wird hier nach VDI SSt. II erfüllt.

Architektur:
Inga Sievers-Südkamp aus Hamburg, www.architektin-sievers-suedkamp.de

Weitere Informationen zum Download